Actualitat de l´Alt Vinalopó, el Vinalopó Mitjà, l´Alcoià, El Comtat i l´Alacantí
Alacant

El Ayuntamiento de Alicante aprueba iniciar las obras para reurbanizar la Plaza Castellón y peatonalizar su entorno en Carolinas

El Ayuntamiento de Alicante aprueba iniciar las obras para reurbanizar la Plaza Castellón y peatonalizar su entorno en Carolinas

El Ayuntamiento de Alicante ha aprobado hoy en junta de Gobierno el último trámite para dar inicio las obras impulsadas por las concejalía de Infraestructuras, dirigida por el edil José Ramón González, y Coordinación de Proyectos, del concejal Antonio Peral, con las que se va a conseguir llevar a cabo la reurbanización de la plaza Castellón, incrementando su tamaño y el espacio útil para los vecinos, logrando priorizar al peatón y suprimir circulación de vehículos, así como crear una gran zona verde.

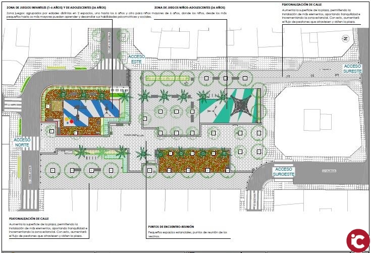
De esta forma, tras la aprobación hoy en junta del plan de Seguridad y Salud, durante este verano se llevan a cabo el inicio de las obras, la conocida como plaza de ‘Les Palmeretes’ en Carolinas Bajas, tal y como ha explicado el edil de Infraestructuras “logrará peatonalizar su entorno y las calles que la rodean, dotándola de juegos infantiles y convirtiéndola de nuevo en un punto de encuentro y de ocio importante para todos los vecinos”.

La empresa Audeca SLU, es la adjudicataria que va a ejecutar estas esperadas obras en Carolinas, con una inversión de 396.737 euros y un plazo de tres meses.

“La plaza va a pasar de tener una superficie inicial de 1.117 m2 a doblar su espacio con más de 2.020 m2, tras su rehabilitación”, ha destacado José Ramón González quien a su vez incidió en que “se van a crear nuevos lugares de pequeñas zonas de reunión, denominados puntos de encuentro, y zonas de juegos infantiles, divididos en dos áreas, la primera de 1 a 6 años y la segunda para mayores de 6 años y adolescentes, y la renovación de todas las instalaciones”.

Según el Ayuntamiento con la renovación de la plaza Castellón, se pretende conseguir revitalizarla y recuperarla, dotándola también de nuevo equipamiento e infraestructuras necesarias y crear una gran zona verde en este entorno que mejorará la calidad de vida de sus ciudadanos, actuaciones pertenecientes al ámbito de la Estrategia EDUSI.

El edil de Coordinación de proyectos explicó que «las obras se circunscriben dentro del ámbito de la Estrategia de Desarrollo Urbano Sostenible Integrado EDUSI Las Cigarreras, de afección en los barrios Carolinas Bajas, Mercado Central, San Antón y Campoamor, y cuya misión es la recuperación y dinamización de ésta área urbana, cofinanciado por el Fondo Europeo de Desarrollo Regional (FEDER), mediante el Programa Operativo de Crecimiento Sostenible para la programación 2014-2020, ‘Una manera de hacer Europa'».

Respecto a otros de los objetivos que esta iniciativa quiere conseguir José Ramón González indicó que uno de los más importantes es además de recuperar físicamente la plaza, “conseguir una regeneración económica y social del entorno, que ayuden a conectar los barrios de esta zona, fomentando la movilidad peatonal, amortiguando y revirtiendo la degradación detectada en los últimos años con un aumento de masa vegetal verde que conllevará a una mejora medioambiental».

Asimismo se ha proyectado una red totalmente nueva de riego con un centro de mano desde el que se programará también el riego del arbolado de las calles adyacentes. Para dar servicio a la fuente/bebedero en la zona de juegos infantiles se instalará una red de agua potable.

La iluminación de la plaza será totalmente nueva, con luminarias provistas de LED, así como toda la instalación eléctrica. La intervención paisajística va a respetar todas las palmeras existentes, replantándose así mismo una de la que solo queda el tocón, además de plantarse árboles para dar sombra, distribuidos por toda la plaza.

Se han proyectado setos y parterres geométricos de arbustivas donde se jugará con las distintas texturas, tamaños, especies, formas y colores de las especies vegetales, de forma que se creen volúmenes mejorando la estética, el espacio visual, y el medio ambiente, y contribuya a la reducción del CO2.

Para separar la zona de juegos infantiles que linda con la calle Poeta Zorrilla, y protegerla de los vehículos, se va a plantar un seto doble denso de forma que quede tupido y totalmente cerrado. Además se aumentará la protección con una pequeña valla metálica.

El agua de lluvias se recogerá y se conectará a la red de pluviales, pero se han diseñado soluciones principalmente basadas en drenajes sostenibles, donde se intente aprovechar al máximo el agua de pluviales, ayuden a infiltrar el agua al mismo tiempo que mejoran la calidad de las aguas de escorrentía.

La solución proyectada de la plaza ha tenido en cuenta que este proyecto se engloba dentro de la estrategia EDUSI, en la línea de actuación 3 Plan de Movilidad urbana sostenible, “Mejora la Accesibilidad y Revitalización Urbana”, con el objetivo de recuperar el espacio urbano, mejora el entorno y las infraestructuras y dotaciones existentes.


201