La Junta de Gobierno aprueba la convocatoria de un procedimiento para adjudicar el contrato de obras comprendidas en el proyecto Demoliciones tendentes a la recuperación tipológica de las edificaciones de la antigua Fábrica de Tabacos .
Alicante. Martes, 2 de abril, 2019. El Ayuntamiento autoriza la inversión de 648.549 euros en la recuperación de las edificaciones que conforman el complejo de la antigua Fábrica de Tabacos, calle Sevilla, número 2. La portavoz del equipo de gobierno municipal, Mari Carmen de España, ha comunicado que la Junta de Gobierno ha aprobado la convocatoria de un procedimiento con el fin de contratar las obras del proyecto de Demoliciones tendentes a la recuperación tipológica de las edificaciones de la antigua Fábrica de Tabacos.
Esta actuación forma parte de la Estrategia de Desarrollo Urbano Sostenible (EDUSI) Alicante – Área Las Cigarreras, cofinanciada por la Comisión Europea con cargo al Fondo Europeo de Desarrollo Regional (FEDER), en un 50%, dentro del Eje Urbano del Programa Operativo de de Crecimiento Sostenible, para la programación 2014-2020. Una manera de hacer Europa.
El plazo de ejecución designado es de tres meses, señalando un presupuesto base de licitación de 648.549,82 euros y admitiéndose preposiciones a la baja para acometer el proceso de rehabilitación incluido por fases en el proyecto.
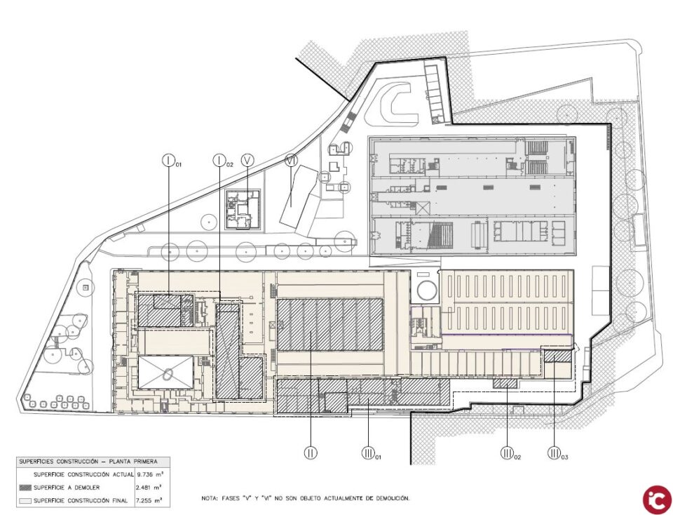
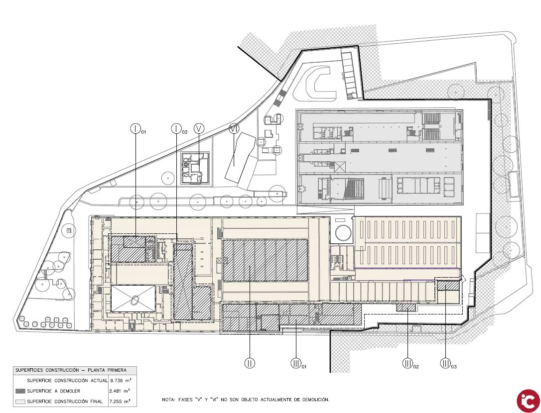
Recuperación en cuatro fases
Asimismo, la fase 1 comprende la zona 01 del claustro 01 y la zona 02: patio corredor. El objetivo es la recuperación de la forma original del claustro existente, como ya se hizo durante al rehabilitación anterior del claustro simétrico, de los arcos del mismo y del patio corredor central.
La fase 2, referente al patio interior, tiene por objetivo la liberación del espacio central, medida que permitirá recuperar la forma original del mismo y mejorará la iluminación y la ventilación de los espacios adyacentes.
La fase 3, sin embargo, comprende tres zonas de actuación en la zona exterior sur. Esta operación consiste en la demolición de las edificaciones adheridas a lo largo del tiempo a la fachada sur original, pues son de baja calidad constructiva y tienen poco interés arquitectónico. También se acometará en esta fase la recuperación de la fachada sur original.
Finalmente, la fase 4 se centra en la mejora de la zona este, planta primera. El fin es liberar el espacio adyacente a la nave de cuchillos metálicos del siglo XIX para permitir tanto una mejor iluminación y ventilación como la recuperación de la volumetría original.
Un conjunto arquitectónico industrial único
El actual complejo edificado de la Tabacalera conforma un conjunto arquitectónico fundamental dentro del patrimonio urbano de la ciudad de Alicante. El núcleo original de la Fábrica de Tabacos fue construido entre 1741 y 1752, como Casa de Misericordia y residencia en la ciudad de Alicante del obispo de Orihuela.
En ese sentido, el complejo urbano mezclaba fines asistenciales, hospitalarios y carcelarios en torno a los distintos patios que vertebraban las distintas actividades. En el centro, separando dos patios, se encontraba también una iglesia, hoy inexistente, que fue construida en 1745.
En 1798 la Casa de Misericordia pasó a ser propiedad del Estado, que mediante una Real Orden la destinó a ser la Fábrica de Tabacos. En 1828 se adecuó el edificio para este nuevo uso y lo amplió. Tras el incendio de 1844, el espacio sufrió distintas transformaciones industriales a lo largo del tiempo.
En 1951 terminaron las negociaciones tras las que se cedieron las propiedades eclesiásticas de la finca a la fábrica, por lo que desaparecieron tanto la nave central de la antigua iglesia, la cúpula y la torre del reloj.
En la actualidad, este conjunto de arquitectura industrial permite conocer la evolución de este tipo de construcciones en Alicante. Además, la fábrica tuvo una gran influencia en el desarrollo de los barrios cercanos, como Carolina, San Antón o San Fernando y de los pueblo de la Huerta de Alicante.
De esta forma, al valor monumental se suma al valor simbólico de la memoria del trabajo en la comarca, dado que la fábrica se convirtió en un gran motor de crecimiento urbano desde mediados del siglo XIX.
En ese sentido, la conservación de este complejo supone la conservación de la identidad de toda la ciudad a través de esta edificación, que en la actualidad es titularidad del Ayuntamiento y consta como bien inmueble de relevancia local, con grado de protección integral.
Las sucesivas actuaciones de mejora, integradas en la Estrategia de Desarrollo Urbano Sostenible Integrado (EDUSI) Alicante – Área Las Cigarreras buscan devolver al complejo una imagen más acorde a su uso inicial y al mismo tiempo poder adaptar las instalaciones a nuevas utilidades y ponerlas a disposición de la ciudadanía.


