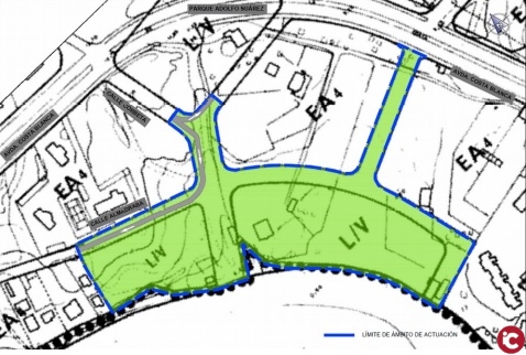
El Ayuntamiento de Alicante ha acordado hoy en Junta de Gobierno la licitación de la redacción del proyecto de Urbanización del entorno de la playa de La Almadraba, a propuesta de la concejalía de Urbanismo del Ayuntamiento de Alicante, dirigida por el edil Adrián Santos. El ámbito de intervención del proyecto alcanza una superficie aproximada de 25.500 m², situados en las parcelas de la calle Almadraba, parte de la calle Corbeta, y la continuación con la calle Arpón.
El edil Adrián Santos ha explicado que este proyecto consiste en una intervención que va a suponer la reurbanización del entorno de la playa de la Almadraba, con el objetivo de habilitar como zona verde las parcelas de propiedad municipal definidas por el PGMOU y la reurbanización de las calles contiguas.
La convocatoria impulsada por el Servicio de Estudios, proyectos y Viario de Urbanismo, cuenta con un plazo de ejecución de dos meses, y un presupuesto base de licitación de 41.760, admitiéndose proposiciones a la baja.
El edil de Urbanismo a su vez ha señalado que con el proyecto se pretende conseguir que ambas parcelas estén integradas entre ellas para resolver la accesibilidad urbana tanto con las calles del entorno como con la propia playa de la Almadraba.
A su vez el proyecto que se va a redactar también va a responder adecuadamente a los condicionantes que supone el yacimiento arqueológico catalogado que se encuentra en una de las parcelas, así como a la distinta normativa que puede afectar a la intervención, como la Ley de Costas, el PATRICOVA, el PATIVEL entre otras.
En la junta se han aprobado las cláusulas administrativas particulares y de prescripciones técnicas, y se va a anunciar la licitación de esta convocatoria en el perfil del contratante, con la autorización del gasto en el presupuesto municipal


