El pressupost base de licitació és de 2.025.351,56 euros i el termini d’execució de 21 mesos
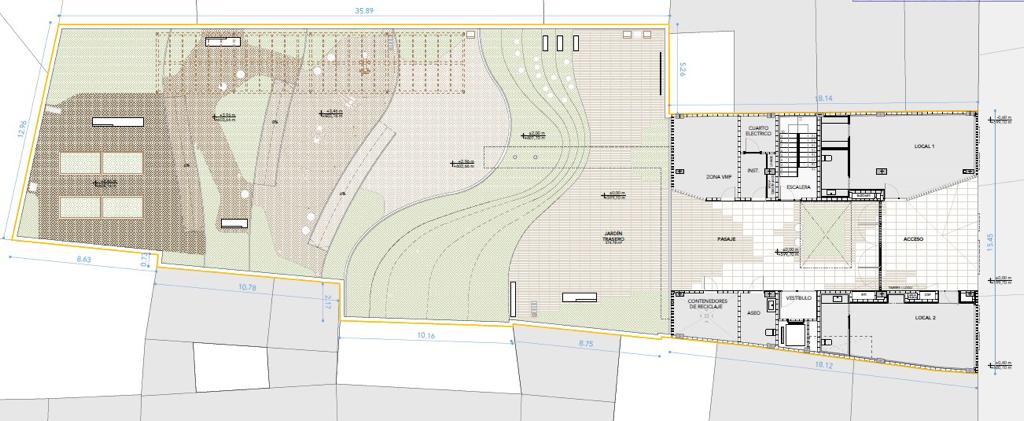
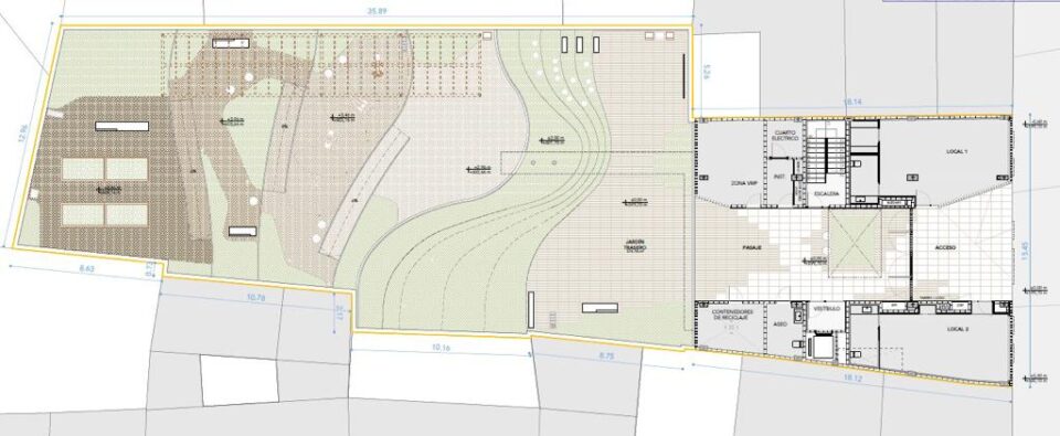
La Junta de Govern d’Ajuntament d’Alcoi va aprovar ahir la licitació per a la construcció d’un edifici de de 18 habitatges intergeneracionals en el barri del Partidor, en concret a Sant Mateu 102 i 104, placeta Les Eres. El pressupost base de licitació és de 2.025.351,56 euros i el termini d’execució de 21 mesos.
La iniciativa consisteix en la construcció d’un edifici de nova planta d’habitatges intergeneracionals, amb allotjaments per a joves i persones d’edat avançada en el Barri de El Partidor. El programa es completa amb espais comuns i jardins, a més, la planta baixa albergarà espais accessibles als veïns del barri mitjançant accés controlat.

El projecte pretén fomentar la relació veïnal i la vida autònoma, d’aquesta manera, encara que els inquilins no seran persones dependents, es preveu major grau d’accessibilitat en els allotjaments i zones comunes de l’edifici. Es tracta d’un edifici sostenible, integrador i intel·ligent, seguint les línies d’estratègia urbana existents i en desenvolupament. A més, la parcel·la s’inclou dins del Conjunt Històric en un entorn urbà molt deteriorat pel pas del temps, per això, amb el present projecte es pretén consolidar aquest entorn convertint-se al mateix temps en un exemple d’intervencions a realitzar en el Centre Històric.
El present projecte compta amb una ajuda de 810.000€ dins del marc del Programa de Foment de la Regeneració i Renovació urbana i rural (ARRUR) del Pla Estatal d’Habitatge 2018-2021, i que ha servit per a finançar part dels honoraris i de les obres.
Segons explica la regidora d’Habitatge, Teresa Sanjuan, «Aquesta acció, junt amb altres que estem duent a terme des de l’Ajuntament d’Alcoi, com per exemple les obres per a rehabilitar un edifici municipal al carrer Sant Maure contribuiran a oferir accés a l’habitatge als col·lectius amb més dificultats, sobretot a les persones joves i a les persones majors de 65 anys i a més aprofitaran per rehabilitar una zona».



