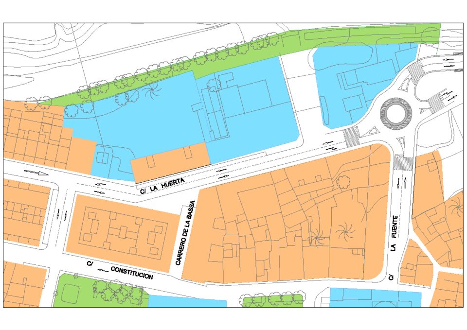
Petrer, 16 de marzo de 2011.- El concejal de Tráfico, Óscar Payá, y el intendente principal de la Policía Local, Antonio Amorós, han anunciado que a partir del 28 de marzo se abrirá al tráfico rodado el Vial de Cuatrovientos. En su conexión con el casco histórico se ha instalado una rotonda al final de la calle la Huerta, y se ha decidido hacer de doble dirección dicha calle hasta su unión con la calle Luis Chorro (la del Mercado Central) y la calle La Fuente (junto a la parroquia de San Bartolomé) hasta llegar a dicha circunvalación. Según Payá de esta manera se logra descongestionar el tráfico del centro y darle rápida salida por varias direcciones. En el tema de aparcamiento junto al parking de la EPA se habilitarán plazas debajo del vial, lo que en total generará cerca de 140 plazas de estacionamiento.
Payá ha señalado que la idea es generar el mínimo cambio que afecte al tráfico, y se logra darle mayor fluidez y ganar en aparcamiento. Desde el Guirney, pasando por la calle la Huerta se mantiene el único sentido hacia el Mercado, y en donde según el edil se mantiene el estacionamiento permitido a uno de los lados y el mercadillo de los lunes no se verá afectado.
El vial de Cuatro Vientos es uno de los proyectos más ambiciosos del equipo de Gobierno del PP ha llevado a cabo esta legislatura. Una actuación de 1,6 millones de euros que comenzó hace algo más de un año y de las cuales la Diputación aporta 1 millón de y el Ayuntamiento el resto. Y servirá para conectar el casco histórico con la zona de Hispanoamérica y los diseminados a través de un vial bajo la autovía del Mediterráneo a la altura de Petrer.


