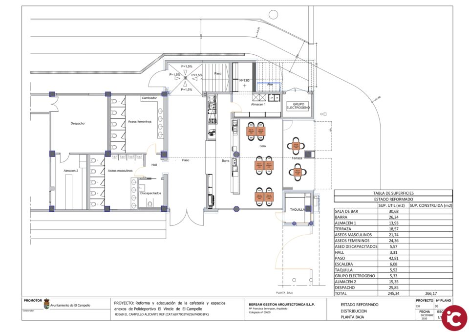
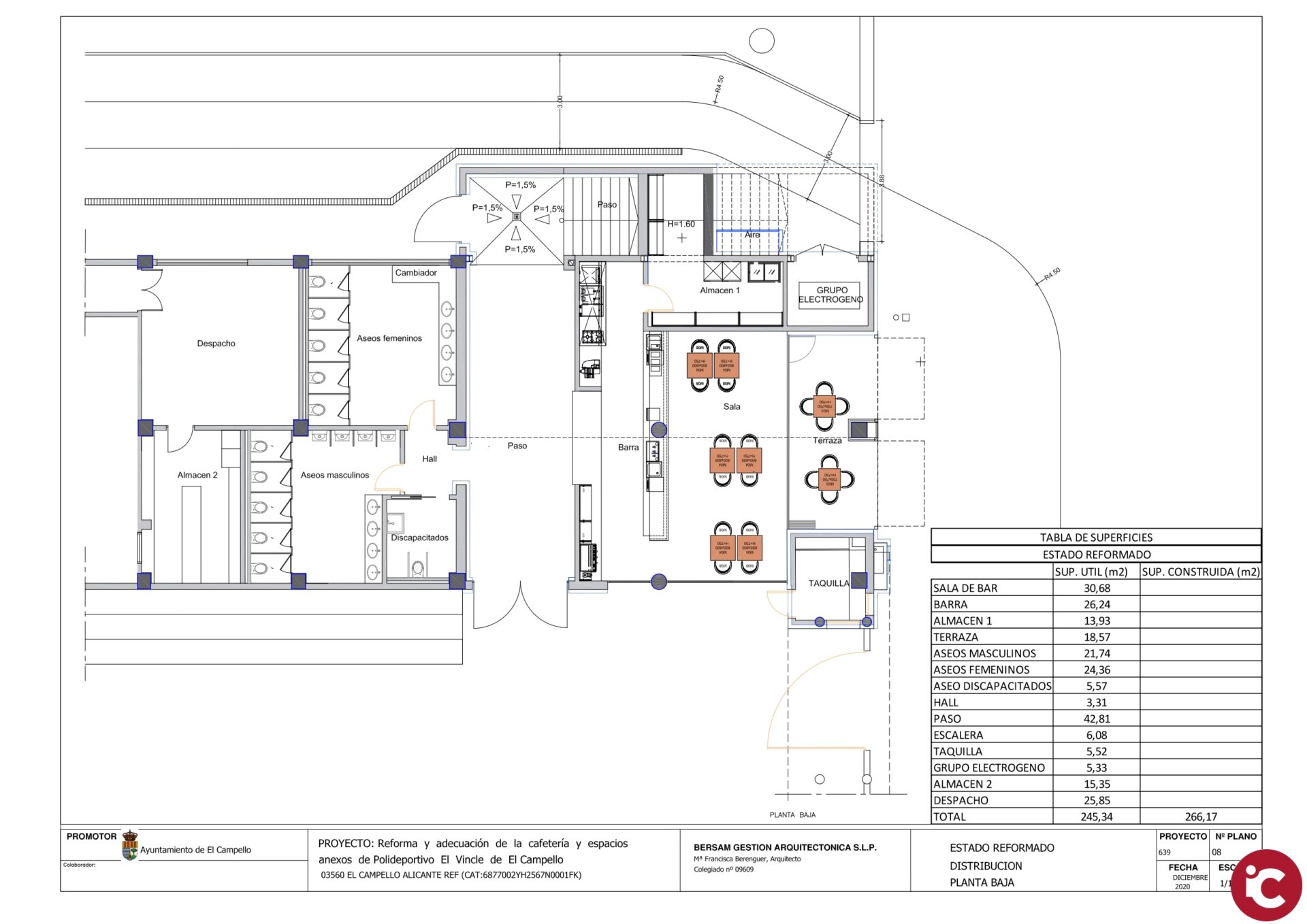
Con una inversión de medio millón de euros, la concejalía de Deportes que dirige Cristian Palomares (PP), reformará íntegramente el Polideportivo El Vincle, lo hará accesible y perfectamente adecuado a la normativa que emana de la ley del Deporte, muy posterior a su construcción.
Es otro de los proyectos que Palomares ha encargado para reformar todas las instalaciones deportivas del municipio, en algunos casos muy deterioradas por el paso del tiempo y el uso intenso y prolongado. La reforma, en este caso, afectará de forma especial y sustancial a la cafetería y dependencias anexas del polideportivo.
Mejorar la accesibilidad del pabellón, redistribuir los espacios interiores y renovar otrosdestinados a vestuarios y aseos, son los objetivos que se marca el proyecto de reforma integral, un documento que ya ha recibido el concejal de Deportes y que se ejecutará cuando se disponga de partida presupuestaria. La obra implicará una inversión de alrededor de 500.000 euros.Con ese dinero se conseguirá un edificio absolutamente accesible.
En esta ocasión, el proyecto se ha encargado a la firma Bersam Gestión Arquitectónica, que ya lo ha ultimado, con previsión de actuar en el conjunto de las instalaciones deportivas.
Se trata de proyectos necesarios para adaptar nuestros pabellones a las leyes en vigor que se han aprobado con posterioridad a su construcción, señala Cristian Palomares. La cafetería tendrá cocina y acceso desde la calle, y se habilitará un pasillo independiente para entrar a las instalaciones y la subida a las gradas, con punto de conserjería


